Oxygen Hotel

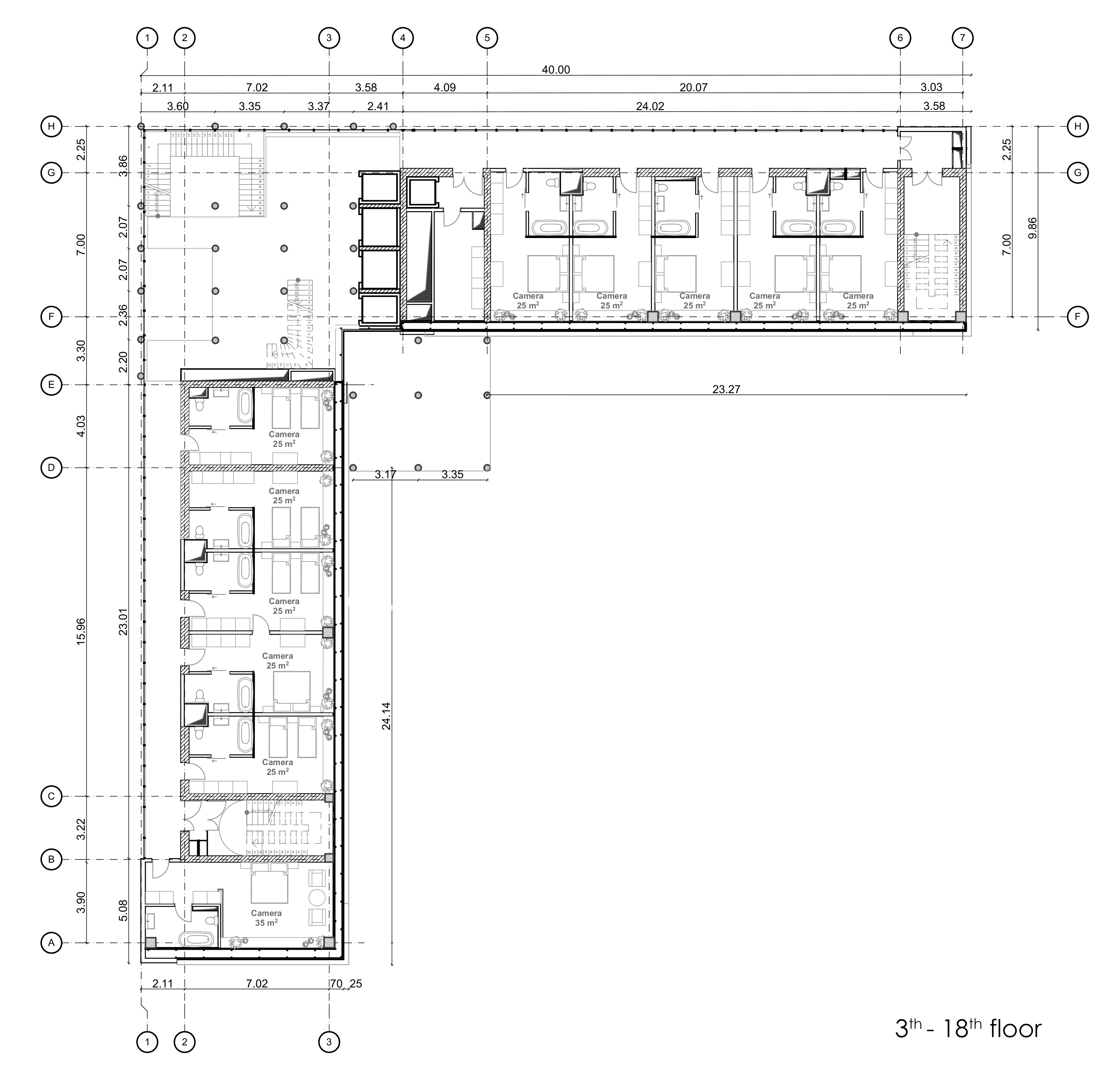
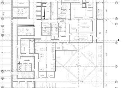
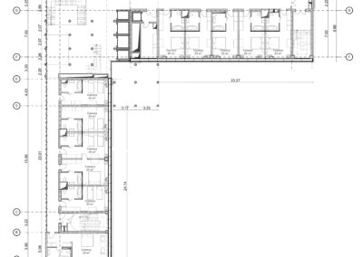
Theme: design a 4th star hotel with 180 rooms and a small restaurant, a multifunctional space, spa and wellness areas and a parking zone.

Location: Timisoara, Romania

Year: 2015-2016

Duration: 3 months

In the context of a fast evolving and advanced technology era, with pollution and health issues, the hotel represents a warning signal for the city, regarding the decreasing green spaces of Timisoara. The concept is shaped around the continuous process of nature rescuing, involving plantation, the maintenance and the cohabitation with the nature. The hotel has a central vegetation tower and two side wings where the hotel rooms are placed.

Pin It on Pinterest